我們歡迎您!! …社團法人臺灣省土木技師公會…

技師報於85年11月18日土木日創刊
新聞局出版事業登記證局版省報字第48號


中華民國一○三年七月五日

廣告專線 :(02)8961-3968轉142
傳真:(02)2964-1159,2963-4076
地址:新北市板橋區三民路二段37號A3
網址:http://www.twce.org.tw
E-mail:mail@twce.org.tw

NO.
917

發  行 人:施義芳
社務委員:陳錦芳、蔡震邦、黃科銘、伍勝民、拱祥生、莊均緯、周子劍
     黃清和、張錦峰、朱弘家、陳玫英、吳亦閎、呂震世、陳永成
監  察 人:巫垂晃、洪啟德、蔡得時、陳清展、梁詩桐
社務顧問:顏 聰、徐德修
社  長:拱祥生

副  社 長:陳錦芳、陳玫英

總  編 輯:莊均緯

副  總 編:朱煌林
營運總監:巫垂晃

總  主 筆:周子劍
本期主筆:張錦峰
執行編撰:李惠華
文字記者:許素梅

鋼筋混凝土構架梁柱接頭區梁主筋配置探討

陳正平技師

前言

現行「混凝土結構設計規範」有關梁柱接頭區內,梁主筋之伸展與錨定需求之規定甚為糢糊不清,且數處相關條文之規定略有不同,而致工程師各自找有利之部分解讀,而忽視其他不利的部分。尤其是技師之執業環境常有受到投資興建房屋之業主要求要降低鋼筋用量之壓力,於是須想盡所有辦法去減少鋼筋用量;甚至為了施工得以快速,工地會有對梁柱接頭區內,梁主筋之伸展長度故意縮減之情形。此對梁柱接頭力學行為不清楚的工程師,即會對規範條文之糢糊不清部分,就有利減料的方向解讀;對梁柱接頭力學行為較為了解的工程師就不敢隨便降低設計及施工品質。因此,造成結構設計從業技師反淘汰之現象,一些資深技師紛紛掛冠退休,而能留在市場的,必須有膽參加減料比賽的人。

筆者亦曾參與一些鋼筋混凝土結構配筋準則或設計標準圖的制定,在討論的過程中亦發現甚多資深技師或專家學者對梁柱接頭區的力學行為仍不甚清楚,而會有一些有結構安全疑慮的看法,而且是佔編輯委員中的大多數,此點令筆者甚感呀異,亦甚為耽憂。例如有委員認為具標準彎鉤只要有直線延伸段dh已足夠符合錨定需求;亦有認為只要標準彎鉤通過柱中心線即可符合錨定需求;亦有認為只要標準彎鉤通過柱圍束核心的四分之三即可符合錨定需求,此些論點均無法提出合理之力學依據。當然梁主筋能越伸入柱核心內越遠端,其錨定效果越佳是不可否認的事實,但到底是否有其必要卻甚少人深入探討。從業技師中有人參與省料比賽而致921地震中造成房屋住戶傷亡的事件,願正在熱中比賽中之技師引以為戒,也希望技師能對規範的原理背景與力學行為多加探討,才能在執業場合中得心應手,保護自己免受牢嶽之災,亦保護人民衆生命財產安全。筆者針對混凝土結構梁柱接頭區內,梁主筋之伸展與錨定,提出個人看法,供參考,亦請工程先進不吝指正。

 

設計規範之相關規定

  筆者長久以來一直認為現行「混凝土結構設計規範」對鋼筋混凝土梁柱構架之梁柱接頭區內,梁主筋之伸展與錨定需求之規定甚為不足,或有不正確之處,但我國「混凝土結構設計規範」係參考ACI-318設計規範制訂,ACI-318設計規範若未明訂,國內規範亦甚難有重大突破之變革。原相關規定彙整如下:

 

混凝土結構設計規範

5.6(受拉鋼筋標準彎鉤之伸展)

其解說中敘明:抗拉彎鉤之破壞模式通常為其彎轉段兩側混凝土之劈裂,或是其彎轉段內緣混凝土的擠碎。因此,為避免此等破壞,須降低彎鉤在彎轉段內之拉應力,故對標準彎鉤之伸展長度dh作規定,dh為由臨界斷面起算直至彎鉤之外側端。而制定dh之目的係期望透過在dh範圍內之握裹應力,逐漸降低臨界斷面處鋼筋之最大應力 fy,使得彎轉段內之鋼筋拉應力降低至不足以發生破壞情形。換而言之,dh也就是臨界拉應力所需之折減伸展長度。具標準彎鉤之受拉鋼筋伸展長度之修正因數包含混凝土保護層、超量鋼筋、輕質混凝土、環氧樹脂塗布鋼筋及源自混凝土或箍筋以抵抗劈裂之圍束效應。和直線鋼筋不同之處是彎鉤之伸展長度無所謂頂層鋼筋之效應,而彎鉤也不易使用頂層鋼筋之定義去辨別。彎鉤部分在抗壓時無效,故在鋼筋受壓時不計彎鉤之伸展效應。【但筆者認為規範未對鋼筋受拉拔出,尤其是多根鋼筋鋼筋受拉拔出時會有共用同一破壞錐的現象加以說明,甚至提供解決方案構想。】

5.6.1條:「受拉竹節鋼筋其末端具標準彎鉤者,其伸展長度dh應符合第5.6.2節之規定,且可依第5.6.3節乘以適用之修正因數予以折減。但dh不得小於8db15 cm。」

5.6.2條:「具標準彎鉤受拉鋼筋之伸展長度為                                                                    (5-3)
式中:(1)鋼筋塗布環氧樹脂時:修正因 e=1.2,其他 e=1.0

(2)鋼筋於輕質混凝土內時:修正因=0.75,其他 =1.0。」

5.6.3條:「具標準彎鉤受拉鋼筋之伸展長度若有符合表5.6.3之使用情況,其dh可分別乘以有關修正因數予以折減。」

5.6.4條:「在構材不連續端內之鋼筋標準彎鉤,其兩側面及頂面(或底面)保護層小於6.5 cm時,其彎鉤之全部伸展長度dh須被間距 3db之垂直箍筋或肋筋所圍束,而第一個圍束箍筋或肋筋距彎鉤外側不得大於2db,且不適用表5.6.3中有關箍筋或肋筋之修正因數db為彎鉤鋼筋之直徑。」

5.7.1(草案):「受拉竹節鋼筋含擴頭者,其伸展長度應符合第5.7.2之規定,其鋼筋必須滿足下列(1)~(6)項條件:

擴頭竹節鋼筋延伸至柱心遠端,錨定長度須大於

5.13(負彎矩鋼筋之伸展)

5.13.1條:「連續、束制或懸臂構材,或剛構之各構材,其負彎矩鋼筋應以適當之埋置長度、彎鉤或其他機械方式於支承內或伸過支承錨定之。」

5.13.2條:「負彎矩鋼筋在跨度內之埋置長度應符合第5.25.11.3節之規定。」

5.13.4條:「深梁內支承處之負彎矩鋼筋須與鄰跨之鋼筋連續。」

15.6.2.1條:「接頭面上梁撓曲拉力鋼筋之應力,應假設為1.25fy。」

15.6.2.2條:「梁縱向鋼筋終止於柱內時,應延伸至柱圍束核心區之另一面,其拉力筋之錨定應按第15.6.5節之規定,壓力筋之錨定應按第五章之規定。」

15.6.2.3條:「當梁主筋貫穿梁柱接頭時,若使用常重混凝土,則平行於梁主筋方向之柱尺寸不得小於最大梁主筋直徑之20倍,若使用輕質混凝土,則上述之柱尺寸不得小於最大梁主筋直徑之26倍。」

15.6.5條:(受拉鋼筋之伸展長度)

15.6.5.1條:「D10D3690°標準彎鉤鋼筋,其伸展長度dh之規定如下。

(1)  常重混凝土:dh不得小於8db15 cm及式(15-6)之規定。
                      
                                                                                             (15-6)

(2)  輕質混凝土:dh(15-6)式之1.25倍。

受拉鋼筋之90°彎鉤應置於柱或邊界構材之圍束核心中。」

15.6.5.3條:「直鋼筋終止於接頭者,應按第15.6.2節之規定貫穿柱或邊界構材之圍束核心。不在圍束核心內之任何部分,其直線埋置長度應增長為1.6倍。」

ACI352(Recommendations for Design of Beam-Column Connections in Monolithic Reinforced Concrete Structures)

4.5.2.5節:「…… For most Type 1 and all Type 2 exterior connections, bars

terminating at a connection may be anchored using a standard

hook as defined by ACI 318-02, or a headed bar

(Section 4.5.3). The tails of the hooks should face into the

joint as shown in Fig. 4.8 and 4.9 to promote the development

of a diagonal compression strut within the joint, which

is the main joint-resisting mechanism relied on in these

recommendations.……」。

對於大部分之第一型 (無承受重大非彈性變形之非耐震結構接頭)及第二型 (承受反復載重會進入非彈性變形之耐震結構接頭)之外柱接頭,梁縱向鋼筋終止於柱內時,須使用標準彎鉤或擴頭鋼筋錨定。標準彎鉤或擴頭鋼筋之尾端應延伸至柱圍束核心區之另一面(如圖2所示),以促使接頭區內發展形成對角受壓桿,此為接頭區內力學平衡之主要抵抗機制。

 

鋼筋錨定之力學行為

以上說明並未提及鋼筋之伸展,只是鋼筋錨定行為中之一個基本條件而已,其是否可在一根鋼筋之伸展,與更多鋼筋同位置伸展,二者是否可達到同樣的錨定需求作說明。蓋鋼筋之錨定除須滿足(1)、混凝土對單一鋼筋的握裹強度是否足夠;(2)、混凝土圓錐狀破壞錐拔出之破壞模式,尤其是多根鋼筋之間距太近,或距離混凝土結構物之外緣太近時,應力破壞錐重疊或破壞應力錐之形狀不完整之情形,因而會導致應力錐有效投影面積不足以抵抗多根鋼筋之總拉力的現象。此時鋼筋在梁柱接頭區內之錨定行為便須藉標準彎鉤鉤住接頭區內之對角向受壓桿,並藉桁架模式((Strut-and-Tie Models)行為來平衡(見圖3),才能抵抗多根鋼筋(鋼筋群)之總拉拔力(見圖3)。當埋置深度不足,即會產生照片1所示之破壞模式。照片23為伸展長度錨定不足之案例。

 

3 接頭區桁架行為平衡模式

 

照片1  接頭區伸展長度不足之破壞模式

[黃世建(2009)NCREE-UBC-PEER project[4]]

     
 

照片2 伸展長度錨定不足之案例之一

 

照片伸展長度錨定不足之案例之二

[房屋結構鋼筋施工綱要與品管]

另外,規範要求梁柱接頭內之梁主筋必須延伸到鄰跨或柱圍束核心區之另一面,設置標準彎鉤錨定,此係為確保多根錨定入梁-柱接頭區之梁主筋可達到充分之錨定效果,及接頭剪力強度可適用規範提供之接頭剪力檢核公式。

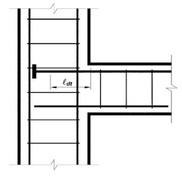
依據「ACI-ASCE Committee 352R-02」“ACI 352 (Recommendations for Design of Beam-Column Connections in Monolithic Reinforced Concrete Structures)”,第4.5.2.5之規定亦可明白標準彎鉤須延伸至柱圍束核心區之另一面錨定之用意(見圖2)

鋼筋標準彎鉤須延伸至柱心遠端,錨定長度須大於dh[ACI 352]

規範及「鋼筋混凝土結構標準圖」修正建議

綜上探討規定顯示,任何未達理想圍束核心遠端之錨定方式均會對梁柱接頭效率折減。梁主筋在梁柱接頭區錨定不足,梁端之塑鉸無法形成,影響耐震能力甚鉅。尤其是全為單跨之構架之建築物,整體韌性行為無法發揮,此恐為了梁柱接頭之韌性行為無法發揮,致結構物韌性設計的觀念功虧一潰,甚為可惜。因此建議設計規範建議修正如下。

15.6.5.1條:「D10D3690°標準彎鉤鋼筋,其伸展長度dh之規定如下。

(1)  常重混凝土:dh不得小於8db15 cm及式(15-6)之規定。
                      
                                                                                             (15-6)

(2)  輕質混凝土:dh(15-6)式之1.25倍。

受拉鋼筋之90°彎鉤應延伸至柱圍束核心區之另一面。」

並將圖2納入規範解說中。

至於「鋼筋混凝土結構標準圖」亦建議比照圖2之方式,將『箍筋與標準彎鉤尾端間之最大淨間距為50mm標示清楚。

結論

鋼筋混凝土構架,梁柱接頭區,甚多執業技師認為具標準彎鉤只要有直線延伸段dh已足夠符合錨定需求;亦有認為只要標準彎鉤通過柱中心線即可符合錨定需求;亦有認為只要標準彎鉤通過柱圍束核心的四分之三即可符合錨定需求,此些論點均無法提出合理之力學依據。依據ACI 352 (Recommendations for Design of Beam-Column Connections in Monolithic Reinforced Concrete Structures)”,第4.5.2.5之規定:對於大部分之第一型 (無承受重大非彈性變形之非耐震結構接頭)及第二型 (承受反復載重會進入非彈性變形之耐震結構接頭)之外柱接頭,梁縱向鋼筋終止於柱內時,須使用標準彎鉤或擴頭鋼筋錨定。標準彎鉤或擴頭鋼筋之尾端應延伸至柱圍束核心區之另一面(如圖2所示),以促使接頭區內發展形成對角受壓桿,此為接頭區內力學平衡之主要抵抗機制。即可明白標準彎鉤須延伸至柱圍束核心區之另一面錨定之用意。

梁主筋任何未達理想圍束核心遠端之錨定方式均會對梁柱接頭效率折減。梁主筋在梁柱接頭區錨定不足,梁端之塑鉸形成前先發生鋼筋「剪力破壞錐型式」之錨定破壞,即梁端塑鉸無法形成,影響建築物結構體之耐震能力甚鉅。尤其是基地較小,為使地下室停車方便,整棟全為單跨構架之建築物,整體韌性行為無法發揮。此恐為了「梁柱接頭之韌性」行為無法發揮而致結構物韌性設計的觀念功虧一潰,影響整棟建築物之結構安全,甚為可惜。因此,建議設計規範及鋼筋混凝土結構標準圖均應明白註明:「標準彎鉤須延伸至柱圍束核心區之另一面錨定,且柱箍筋與標準彎鉤尾端間之最大淨間距為50mm,不要有糢糊之處而致工程師產生誤解。

 

【參考資料】

1.ACI-ASCE(2002).Committee 352,  Recommendations for Design of Beam-Column Connections inMonolithic Reinforced Concrete Structures

2.內政部(2011) 。混凝土結構設計規範。201169日台內營字第1000801914號令修正。

3.ACI-318-11(2011)Committee 318 , Building Code Requirements forStructural Concrete

4.黃世建( 2009)國內鋼筋配置常見之瑕疵與改善對策

 

    Top   Back