我們歡迎您!! …社團法人臺灣省土木技師公會…

技師報於85年11月18日土木日創刊
新聞局出版事業登記證局版省報字第48號


中華民國一○九年四月四日

廣告專線 :(02)8961-3968轉142
傳真:(02)2964-1159,2963-4076
地址:新北市板橋區三民路二段37號A3
網址:http://www.twce.org.tw
E-mail:mail@twce.org.tw

NO.

1217

發  行 人:施義芳
社務委員:洪啟德、陳玫英、鄭明昌、蔡震邦、陳清展、賴建宏、周子劍
     黃騰輝、巫垂晃、謝詳樹、陳菁雲、楊高雄、陳存永、梁詩桐
監  察 人:張長梅、陳錦芳、呂震世、陳永成、伍勝民
社  長:賴建宏

副  社 長:陳玫英、黃騰輝、陳存永

總  編 輯:楊耀昇

副  總 編:朱煌林
營運總監:陳玫英

總  主 筆:周子劍
本期主筆:周子劍
執行編撰:李惠華
文字記者:許素梅

審查重點及結果彙整表()新建結構耐震設計

鍾立來1,2,3、陳暉欽4、賴勇安5、宋康德4、翁元滔1、楊巧薇4

1國震中心、2臺大土木系3成大土木系、

4 ARUP工程顧問有限公司、5中央大學土木系

樓房乃人類棲身、安居、樂業之所,其結構安全至為重要,而地震則為安全威脅之首。因此,產官學界通力合作,制訂建築物耐震設計規範及解說[1],由政府頒布施行,以資依循。規範乃最低要求,必須滿足之。建築物達一定規模(以台北市為例,地上高度50 m以上、地下開挖深度12 m以上、RC梁跨度15 m以上),其設計必須經由第三方公正單位審查,足見其重要性。縱然未達一定規模,樓房結構攸關生命,其設計必須謹慎為上。所以,樓房結構耐震設計後,自我檢核及同儕審查,就變得非常重要,甚至是標準作業程序之重要一環。

本文針對既有樓房結構之耐震評估及補強設計,訂定審查重點及結果彙整表[2,3],輔助設計人及審查人之溝通,作好樓房結構耐震能力提升之任務[4];新建結構同樣重要,有鑑於此,本文嘗試接續先前之工作,擬訂新建樓房結構耐震設計之審查重點及結果彙整表,列出工址之資料、結構之資料及地震力之資料,供設計人或審查人參考,或自我檢核,或同儕審查,檢視相關數據設定之合理性及相互之關聯性,共同確保耐震設計之品質,建立耐震的家園。

一、工址之資料

工址資料之檢核項目彙整於1。自鑽探報告,直接或間接取得地表下30公尺之土層平均剪力波速,從而作地盤分類,並取得地盤反力係數,並據此作開挖分析。由工址所在之行政區、鄰近斷層之距離及地盤之分類,建立設計基準地震及最大考量地震之反應譜,即為強地動之需求。將資料彙整成1,便於檢核其合理性,避免低估或高估設計之需求。

二、結構之資料

樓房結構資料之檢核項目彙整如2,由一樓及標準層之樓層高度比,可呈現軟弱層可能之趨勢。由標準層XY向最大尺度,可概知上部結構總樓地板面積之上限。從上部結構單位樓地板面積之重量,可檢核樓房重量計算之結果。一樓垂直構件之正規化重量(樓房上部結構重量與一樓垂直構件軸向抗壓強度之比值),可顯現一樓垂直構件數量之足夠度。此外,尚有開挖深度、開挖擋土工法、連續壁/擋土壁體厚度及貫入深度,再以所在工址之地質條件,判斷其合理性。 

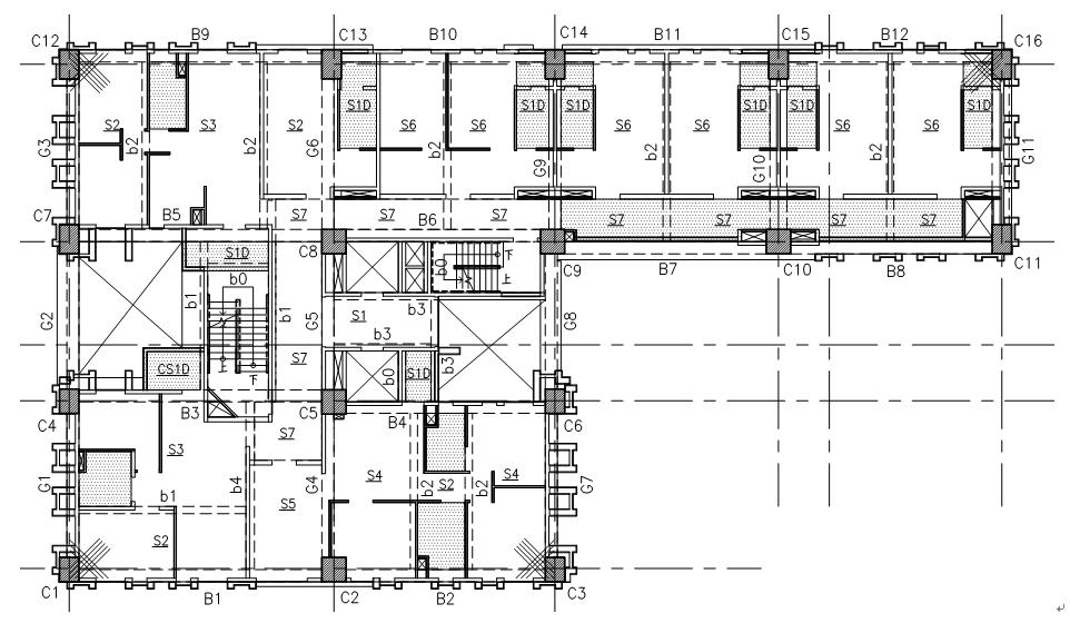
範例樓房結構乃鋼筋混凝土造,地上12層,地下3 (3D模型示於1X向立面示於2Y向立面示於3、標準層平面示於4、資料彙整於2)。樓高 (1樓抬高、但不含屋突)41.7 m,一樓樓層高6.5 m,為標準層的2.03 倍,須注意軟弱層之檢核。地下高 (不含基礎板) 11.45 m,開挖深度13.65 m,開挖擋土採RC擋土柱,擋土壁深16.25 m,厚40 cm。標準層XY向最大尺度,分別為38.4020.75 m,最大跨度分別為10.907.30 m。基面以上之總樓地板面積(含屋突)6,725.6 m2,單位樓地板面積之重量1.584 tf/m2,尚屬合理。一樓柱子總數16,總斷面積16 m2,一樓無結構牆,單位垂直構件斷面積之重量66.59 kgf/cm2,而一樓混凝土設計抗壓強度350kgf/cm2,故一樓柱子之正規化軸力0.190,柱子之數量尚稱充足。經檢核後,結構之資料 (2) 尚屬合理。

三、地震力之資料

四、結語

本文彙整樓房結構耐震設計之結果,縱然結構計算書之格式因設計人而異,亦能從中萃取重要數據,整理成表,易於判讀。透過設計單位之自主檢查,或第三公正單位之同儕審查,定能為樓房結構設計之品質,一層一層,嚴謹地把關。

彙整表之數據可轉化為資料庫之欄位,蒐集案例,置於資料庫。經由統計分析,萃取心得,訂定數據之合理範圍,或數據間之合理關聯性。若出現異常數據,即發出警訊,供設計人與審查人進一步檢核。

建築物實施耐震能力評估及補強方案(公有建築物)[5]89 年奉行政院核定,並於97年、103年及106年部分修正,在第伍條「建築物耐震能力評估及補強之實施」第七項中,明訂詳細評估與補強設計應接受審查。如拆除重建,新建工程之造價規模常十倍於補強工程,新建工程之結構耐震設計,更應接受審查,保障使用者之安全。因此,期望公有建築物之耐震評估、耐震補強、耐震設計,皆納入審查,確保其耐震能力,減緩地震之一次災害,更可肩負緊急避難,進一步減緩二次災害,提高社會之復原能力。

參考文獻

1.      內政部營建署 (2011),「建築物耐震設計規範及解說」。

2.      鍾立來、陳俊鴻、楊耀昇、邱聰智、涂耀賢 (2019),「結構耐震評估:審查重點及結果彙整表」,技師報,第1180期。https://youtu.be/5jdmMc2Pp_0

3.      鍾立來、涂耀賢、邱聰智、楊智斌、楊耀昇 (2019),「審查重點及結果彙整表():結構耐震補強」,技師報,第1198期。https://youtu.be/HUPeptMjZQM

4.      鍾立來、陳俊鴻、楊耀昇、邱聰智 (2019),「結構耐震設計與評估:以側推分析檢核軟弱層」,技師報,第1175期。https://youtu.be/yVhY8DD8lyM

5.      內政部營建署 (2017),「建築物實施耐震能力評估及補強方案 (公有建築物)」,行政院 106 12 28 日院臺建字第 1060040728 號函原則同意。https://www.cpami.gov.tw/filesys/file/chinese/dept/br2/1060040728.pdf  

工址之資料

 

結構之資料

 

地震力之資料

 

 

範例結構之3D模型

 

範例結構之X向立面圖

     

 

範例結構之Y向立面圖

  範例結構之標準層平面圖

 

返回上一畫面

    Top   Back