我們歡迎您!! …社團法人臺灣省土木技師公會…

技師報於85年11月18日土木日創刊
新聞局出版事業登記證局版省報字第48號


中華民國一○七年五月二十六日

廣告專線 :(02)8961-3968轉142
傳真:(02)2964-1159,2963-4076
地址:新北市板橋區三民路二段37號A3
網址:http://www.twce.org.tw
E-mail:mail@twce.org.tw

NO.
1120

發  行 人:張錦峰
社務委員:鄭明昌、巫垂晃、莊均緯、伍勝民、陳錦芳、黃科銘、朱弘家
     呂震世、陳菁雲、張長海、梁詩桐、黃清和、陳永成、陳清展
監  察 人:施義芳、周子劍、蔡震邦、陳玫英、賴建宏
社  長:莊均緯

副  社 長:伍勝民、陳錦芳

總  編 輯:賴建宏

副  總 編:朱煌林
營運總監:陳玫英

總  主 筆:周子劍
本期主筆:魏嘉甫
執行編撰:李惠華
文字記者:許素梅

結構消能設計:阻尼器力量或數量之概算

鍾立來1,2,3、蔡欣晏4、賴勇安2、劉紹魁4、周維苓2、林志翰4、賴昱志2、陳陸民4

1國震中心、2臺大土木系、3成大土木系、4科建顧問公司

一、前言

在地震作用下,結構之反應 (相對位移、相對速度及絕對加速度), 隨其週期及阻尼比而變化。結構之設計 (加速度) 反應譜以阻尼比5%為基準,即阻尼比固定為5%,使設計反應譜僅為週期之函數[1]。當其他參數不變,阻尼比愈高,結構反應愈低,設計地震力愈小。當結構之阻尼比異於5%時,建築物耐震設計規範[1],提供阻尼修正係數,修正結構之設計反應譜及其設計地震力。若結構之阻尼比低於5%,則以對應之阻尼修正係數,放大設計反應譜及地震力;反之,若結構之阻尼比高於5%,則以對應之阻尼修正係數,折減設計反應譜及地震力。綜言之,阻尼比乃結構耐震設計的重要參數之一。

隨著經濟之發達,除了結構安全性外,更要求舒適度。於結構系統內,裝設消能元件,提高結構之阻尼比,降低結構之反應及地震力,可同時提升結構之安全性及舒適度,此一策略日漸普遍。工程師提供專業意見,讓業主了解阻尼比提升之效益,同時提出所需阻尼器之力量及數量 (成本),供業主權衡成本效益,作出最佳之決策。有鑑於此,本文探討阻尼器之力量及數量之需求,以達阻尼比提升幅度之目標,以合理之假設,簡化推導之程序,提出簡易之公式,工程師可迅速回應業主之諮詢,作阻尼器力量及數量需求之初步設計。

二、阻尼器力量或數量概算公式

 

四、結語

由建築物之用途分類,可得結構之用途係數;由地上樓層之樓地板面積,可估算結構之全部重量;由樓高及結構系統,可估算其基本振動週期;由結構之所在地及基本振動週期,可算得其設計譜加速度;由結構之韌性容量及基本振動週期,可算得地震力折減係數;基於上述數據,即可概算設計地震力。設定欲提升之阻尼比,選定阻尼器之速度指數及其消能參數。若設定阻尼器之支數,依本文所提之概算公式,即可得單一阻尼器之力量需求;若設定阻尼器之設計力量,依本文所提之概算公式,即可得阻尼器之數量需求。

一般而言,考量成本效益,阻尼器多置於層間位移較大之樓層,既可抑制該樓層之變位 (改善安全性及舒適度),又可提高效果,在提升同樣之阻尼比下,降低阻尼器力量或數量之需求。如此一來,概算公式 (假設每一樓層之層間位移皆同) 可視為需求之上限。透過範例,闡述阻尼器力量或數量之概算,驗證其程序實屬可行,可供工程師作阻尼器初步選取之參考。

參考文獻

1.內政部營建署 (2011),「建築物耐震設計規範及解說」,內政部100.1.19台內營字第0990810250號令,自中華民國10071日生效。

 http://www.cpami.gov.tw/filesys/file/chinese/publication/law/lawdata/1000801914-15.pdf

 

 

正規化阻尼力與正規化位移之關係

  範例之結構立面圖
     
 

維氏與諾布氏的壓入頭(indenter)示意圖[5]

 

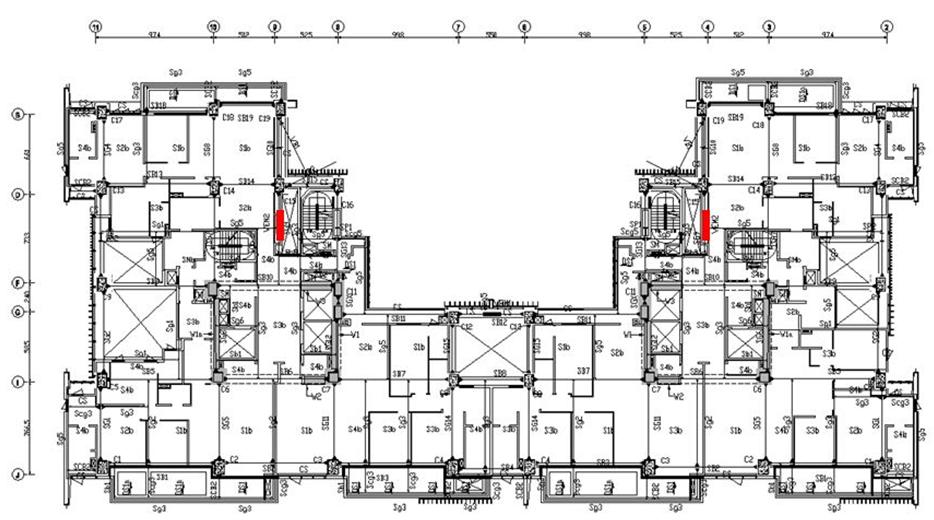
範例之標準層結構平面圖及其Y向阻尼器之

配置 (以紅線表示)

 

返回上一畫面

    Top   Back